![]() | ![]() | ![]() | ![]() | ![]() |
|---|---|---|---|---|
![]() | ![]() | ![]() | ![]() | ![]() |
![]() | ![]() | ![]() | ![]() |
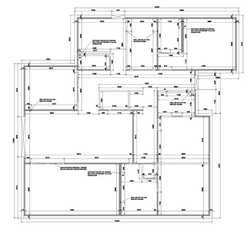
White Lodge
Yorkshire
One of our recently completed projects, currently in the cladding stage.​​

"Everyone involved in the project has helped us achieve exactly what we were after and we are very much looking forward to moving in very shortly. Thanks to all your team."
- The client
Construction Timelapse
This self build's substructure and superstructure were constructed using our THEPASSIVHAUS technology, making the build both time and cost efficient without compromising on design, giving the client a very pleasant and stress-free self build experience.
Planning & Design Phase
"Your extensive experience in the principles of Passive House construction and general knowledge on all aspects of house building helped enormously with problem solving during our fit out phase."
- The client
![]() | ![]() | ![]() |
|---|---|---|
![]() | ![]() | |
![]() | ![]() | ![]() |
Build Phase Gallery
A visual diary of White Lodge's construction, from substructure to superstructure (click images to open).





- The client
“I found the design phase very helpful. The multitude of meetings were perfect for me to talk through with your team design details, practical build issues and recommendations regarding alterations. Your extensive experience in the principles of Passive House construction and general knowledge on all aspects of house building helped enormously with problem solving during our fit out phase.
​
The house frame construction went very well despite the best efforts of the wind to delay crane working and your air tightness regime on the frame was super diligent as was confirmed by the initial air tightness figures we received.
Nothing can completely remove the stress of a self build project but everyone involved in the project has helped us achieve exactly what we were after and we are very much looking forward to moving in very shortly.
Thanks to all your team.”




























